Unsere Datenschutzbedingungen haben sich aktualisiert, bitte prüfen Sie Ihre Einstellungen

Wir ersuchen um Ihre Zustimmung für Cookies. Marketing-Cookies werden erst mit Ihrer Zustimmung und ausschließlich für statistische Zwecke verwendet, unsere Website ist werbefrei. Bis auf die technisch notwendigen sind alle Cookies zu Beginn deaktiviert. Nähere Informationen finden Sie in unserer Datenschutzerklärung. An dieser Stelle können Sie Ihre Entscheidung auch jederzeit ändern.

Einstellungen anpassen

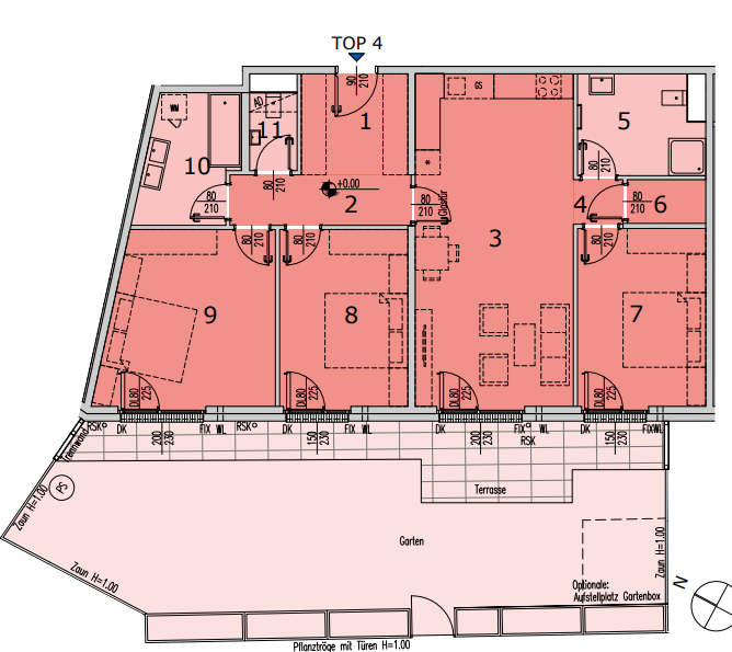
Stiege 2 / Top 2.4

Nutzung Wohnen (Eigentum)
Zimmer 4
Fläche 106,00 m²
Kaufpreis brutto € 645.000,00
Adresse 1210 Wien - Simone-Veil-Gasse 4/2
Geschoß EG
Freifläche(n) 56,77 m² Garten | 17,83 m² Terrasse
Ausrichtung Süden, Westen
Verfügbarkeit Sofort
Geplante Fertigstellung Herbst 2026
Monatliche Kosten € 369,62
HWB 20,20 kWh/m²a | fGEE 0,74
ARWAG Energy
  • PV-Strom
  • Wärme
  • Temperierung
  • Wasser

WohnWildnis1210

Sehen Sie sich alle Informationen zu diesem ARWAG Energy-Projekt an.

Wolfgang TRÖSCHER

Arwag Energy-Projekt

  • PV-Strom
  • Wärme
  • Temperierung
  • Wasser

PV-Strom: Photovoltaik liefert günstigen Strom direkt vom eigenen Dach. Keine Netzkosten oder Abgaben.

Wärme: Beheizung über Bauteilaktivierung in den Decken. In Wohnungen im Erdgeschoss zusätzlich Fußbodenheizung. Wärme wird gleichmäßig im Raum verteilt und sorgt für hohen Wohnkomfort.

Wasser: Warmwasser kommt aus einer zentralen Wärmepumpe über Tiefenbrunnen. Es wird das ganze Jahr über erzeugt und nach Verbrauch abgerechnet.

Temperierung: Im Sommer fließt kühles Wasser durch die Decke. Die Räume bleiben auch an warmen Tagen angenehm.

Downloads

Umgebung

  • Straßenbahn 2, 25, 26 < 1 km
  • Schulen < 1 km
  • Öffentliche Parks < 1 km Sportanlagen < 1 km

Cookie-Einstellungen