Top 11
Wohnen (Miete)
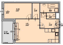
Zimmer: 2
Fläche: 54,68 m²
Gesamtbelastung brutto: € 602,23
Adresse | 1230 Wien - Muliarplatz 1 |
---|---|
Geschoß | 1. OG |
Freifläche(n) | 7,11 m² Loggia |
Finanzierung | Gefördert |
Finanzierungsbeitrag | € 26.445,35 |
Max. Mietdauer | unbefristet |
Kündigungsverzicht | keine Mindestmietdauer |
Ausrichtung | Westen |
Verfügbarkeit | 01.01.26 |
HWB | 20,35 kWh/m²a | fGEE 0,79 |
Projekt |
Muliarplatz
Zum Projekt
|


- Exposé (pdf)
- Vertragsplan (pdf)
- Detailplan (pdf)
Umgebung
- U6 < 500 m Bus 61A < 250 m
- Supermarkt < 1 km
- Arzt < 500 m Apotheke < 1 km
- Volksschule < 500 m