Unsere Datenschutzbedingungen haben sich aktualisiert, bitte prüfen Sie Ihre Einstellungen

Wir ersuchen um Ihre Zustimmung für Cookies. Marketing-Cookies werden erst mit Ihrer Zustimmung und ausschließlich für statistische Zwecke verwendet, unsere Website ist werbefrei. Bis auf die technisch notwendigen sind alle Cookies zu Beginn deaktiviert. Nähere Informationen finden Sie in unserer Datenschutzerklärung. An dieser Stelle können Sie Ihre Entscheidung auch jederzeit ändern.

Einstellungen anpassen

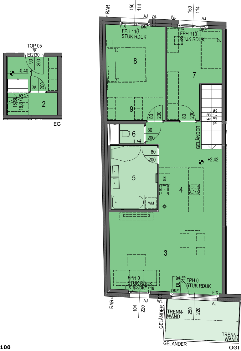
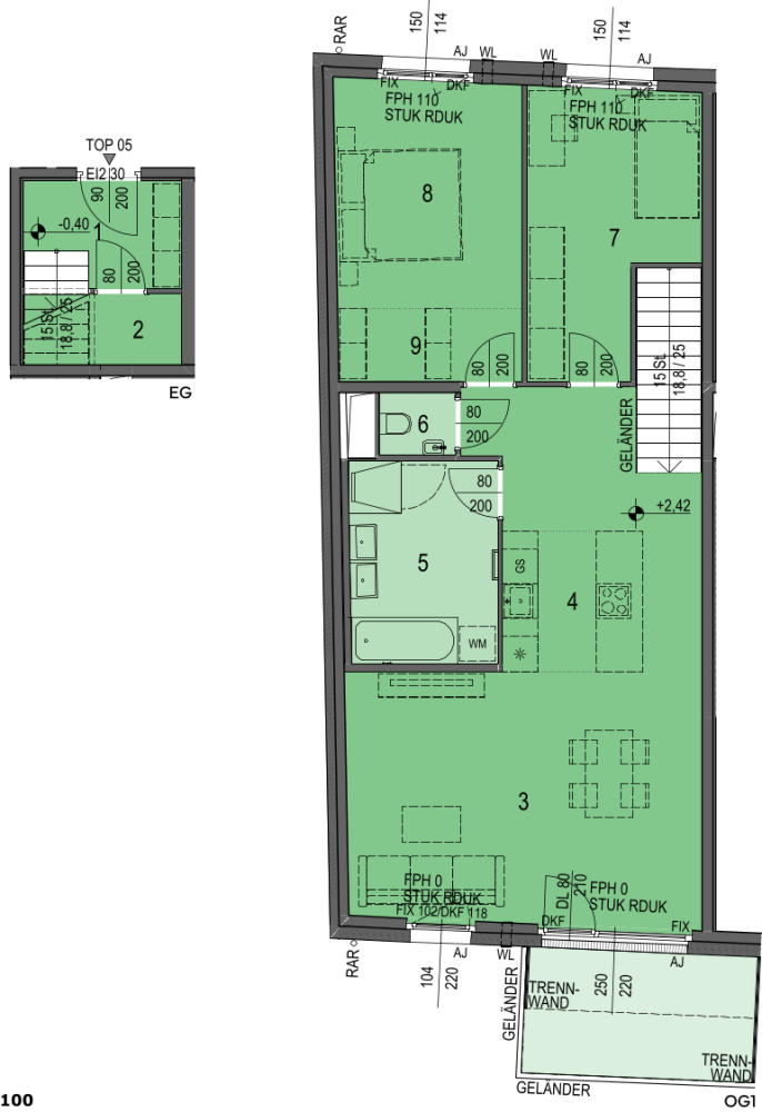
Top 05

Nutzung Wohnen (Eigentum)
Zimmer 3
Fläche 89,09 m²
Kaufpreis brutto € 497.000,00
Adresse 1140 Wien - Haupt­stra­ße 113
Geschoß EG
Freifläche(n) 4,68 m² Loggia | 4,38 m² Balkon
Verfügbarkeit Sofort
Geplante Fertigstellung Frühling 2028
Monatliche Kosten € 350,16
HWB 27,40 kWh/m²a | fGEE 0,64
ARWAG Energy
  • PV-Strom
  • Wärme
  • Temperierung
  • Wasser
Weitere Wohnoptionen

Diese Wohnung ist auch im Miet-Kauf-Modell  verfügbar.

Zum Miet-Kauf-Angebot

Wald[Leben] 113

Sehen Sie sich alle Informationen zu diesem ARWAG Energy-Projekt an.

Dominik MONGHY

Arwag Energy-Projekt

  • PV-Strom
  • Wärme
  • Temperierung
  • Wasser

PV-Strom: Photovoltaik liefert günstigen Strom direkt vom eigenen Dach. Keine Netzkosten oder Abgaben. Anmeldung unter ARWAG Energy

Wärme: Beheizung über Bauteilaktivierung in den Decken. In Wohnungen im Erdgeschoss zusätzlich Fußbodenheizung. Wärme wird gleichmäßig im Raum verteilt und sorgt für hohen Wohnkomfort.

Temperierung: Im Sommer fließt kühles Wasser durch die Decke. Die Räume bleiben auch an warmen Tagen angenehm.

Wasser: Warmwasser kommt aus einer zentralen Wärmepumpe. Es wird das ganze Jahr über erzeugt und nach Verbrauch abgerechnet.

Downloads

Cookie-Einstellungen