Unsere Datenschutzbedingungen haben sich aktualisiert, bitte prüfen Sie Ihre Einstellungen

Wir ersuchen um Ihre Zustimmung für Cookies. Marketing-Cookies werden erst mit Ihrer Zustimmung und ausschließlich für statistische Zwecke verwendet, unsere Website ist werbefrei. Bis auf die technisch notwendigen sind alle Cookies zu Beginn deaktiviert. Nähere Informationen finden Sie in unserer Datenschutzerklärung. An dieser Stelle können Sie Ihre Entscheidung auch jederzeit ändern.

Einstellungen anpassen

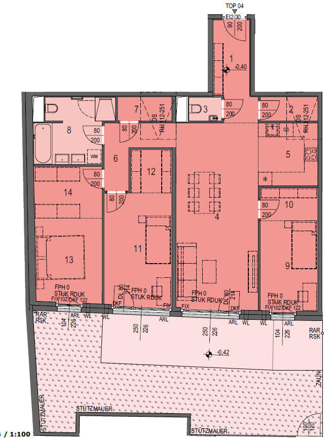
Top 04

Nutzung Wohnen (Miet-Kauf)
Zimmer 4
Fläche 113,90 m²
Kaufpreis brutto € 683.550,00
Adresse 1140 Wien - Haupt­stra­ße 113
Geschoß EG
Freifläche(n) 39,15 m² Garten | 22,28 m² Terrasse
Verfügbarkeit Sofort
Geplante Fertigstellung Frühling 2028
Anzahlung 25% vom Kaufpreis € 170.888,00
Kaution € 6.570,00
Monatliche Bruttomiete € 2.190,01
HWB 27,40 kWh/m²a | fGEE 0,64
Weitere Wohnoptionen

Diese Wohnung ist auch als Eigentum verfügbar.

Zum Eigentums-Angebot

Wald[Leben] 113

Sehen Sie sich alle Informationen zu diesem ARWAG-Projekt an.

Dominik MONGHY

Jetzt mieten, später kaufen?

Was ist das Miet-Kaufmodell?

Miet-Kaufmodell

Mit dem ARWAG Miet-Kaufmodell beziehen Sie sofort Ihre neue Wohnung und bleiben zunächst flexibel. Der Kaufpreis wird von Anfang an fix vereinbart und sorgt für volle Planungssicherheit.
Beim Start leisten Sie eine Anzahlung auf den Kaufpreis sowie 3 Bruttomonatsmieten Kaution. Während der Mietphase können Sie jederzeit die Kaufoption ausüben. 

Ihr Vorteil: Anzahlung und 100 % des bezahlten Netto-Hauptmietzinses werden beim Kauf angerechnet. So bauen Sie bereits während der Mietzeit Eigenkapital auf.

Downloads

Cookie-Einstellungen