Stiege 2 / Top 10
Wohnen (Eigentum)
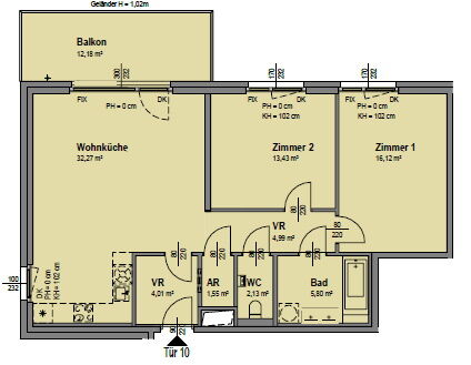
Zimmer: 3
Fläche: 80,30 m²
Kaufpreis brutto:
€ 641.800,00
Adresse | 1130 Wien - Lainzerstraße 172/2 |
---|---|
Geschoß | 3. OG |
Freifläche(n) | 12,18 m² Balkon |
Monatliche Kosten | € 309,84 |
Ausrichtung | Norden |
Fertiggestellt | Frühling 2024 |
HWB | 27,60 kWh/m²a | fGEE 0,75 |
Projekt |
Das NOAH+
Zum Projekt
|



Küchenplaner
Konfigurieren Sie jetzt Ihre neue Küche
mit Propster
- Exposé (pdf)
- Bau- und Ausstattungsbeschreibung (pdf)
- Vertragsplan (pdf)
- Detailplan (pdf)
- Lageplan (pdf)
- Geschoßplan (pdf)
- Übersichtsplan Keller/Garage (pdf)
- Dachdraufsicht (pdf)
- Übersichtsplan Allgemeinräume (pdf)
Umgebung
- Buslinien 56A,56B,N60 < 100 m Straßenbahn 60,62 < 100 m
- Supermärkte < 500 m
- Krankenhaus Hietzing < 2 km
- Öffentl. Parks < 1 km