Unsere Datenschutzbedingungen haben sich aktualisiert, bitte prüfen Sie Ihre Einstellungen

Wir ersuchen um Ihre Zustimmung für Cookies. Marketing-Cookies werden erst mit Ihrer Zustimmung und ausschließlich für statistische Zwecke verwendet, unsere Website ist werbefrei. Bis auf die technisch notwendigen sind alle Cookies zu Beginn deaktiviert. Nähere Informationen finden Sie in unserer Datenschutzerklärung. An dieser Stelle können Sie Ihre Entscheidung auch jederzeit ändern.

Einstellungen anpassen

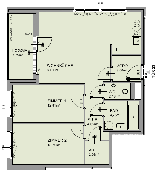
Top 23

Wohnen (Miete)
Zimmer: 3 Fläche: 74,89 m² Gesamtbelastung brutto: € 1.516,51
Adresse 1130 Wien - Preyergasse 4
Geschoß 3. OG
Freifläche(n) 7,75 m² Loggia
Finanzierung Freifinanziert
Kaution 3 Bruttomonatsmieten
Max. Mietdauer 5 Jahre
Kündigungsverzicht 1 Jahr
Ausrichtung Westen
Verfügbarkeit 01.11.25
Fertiggestellt Frühling 2024
HWB 25,30 kWh/m²a | fGEE 0,6
Projekt
Das NOAH Zum Projekt

Nina Bruck­mann

Downloads

Umgebung

  • Buslinien 56A, 56B, N60 < 100 m Straßenbahn 10,52,60 < 100 m
  • Supermärkte < 500 m
  • Krankenhaus Hietzing < 2 km
  • Öffentl. Parks < 1 km

Cookie-Einstellungen